portada bis.jpg

Proyecto Amplitude [Paris_XVII]

Projet Amplitude

La arquitectura es una disciplina que combina arte

PROyecto AMPLITUDE gabinete de fisioterapia

[PARIS XVII]

 

ENCARGO : Agencement d’un cabinet de kinésithérapie et design de mobilier

AÑO : 2024

LOCALIZACION : 12 Rue Lechapelais, 75017 Paris, France

SUPERFICIE : 35 m²

ESTADO : Contruido


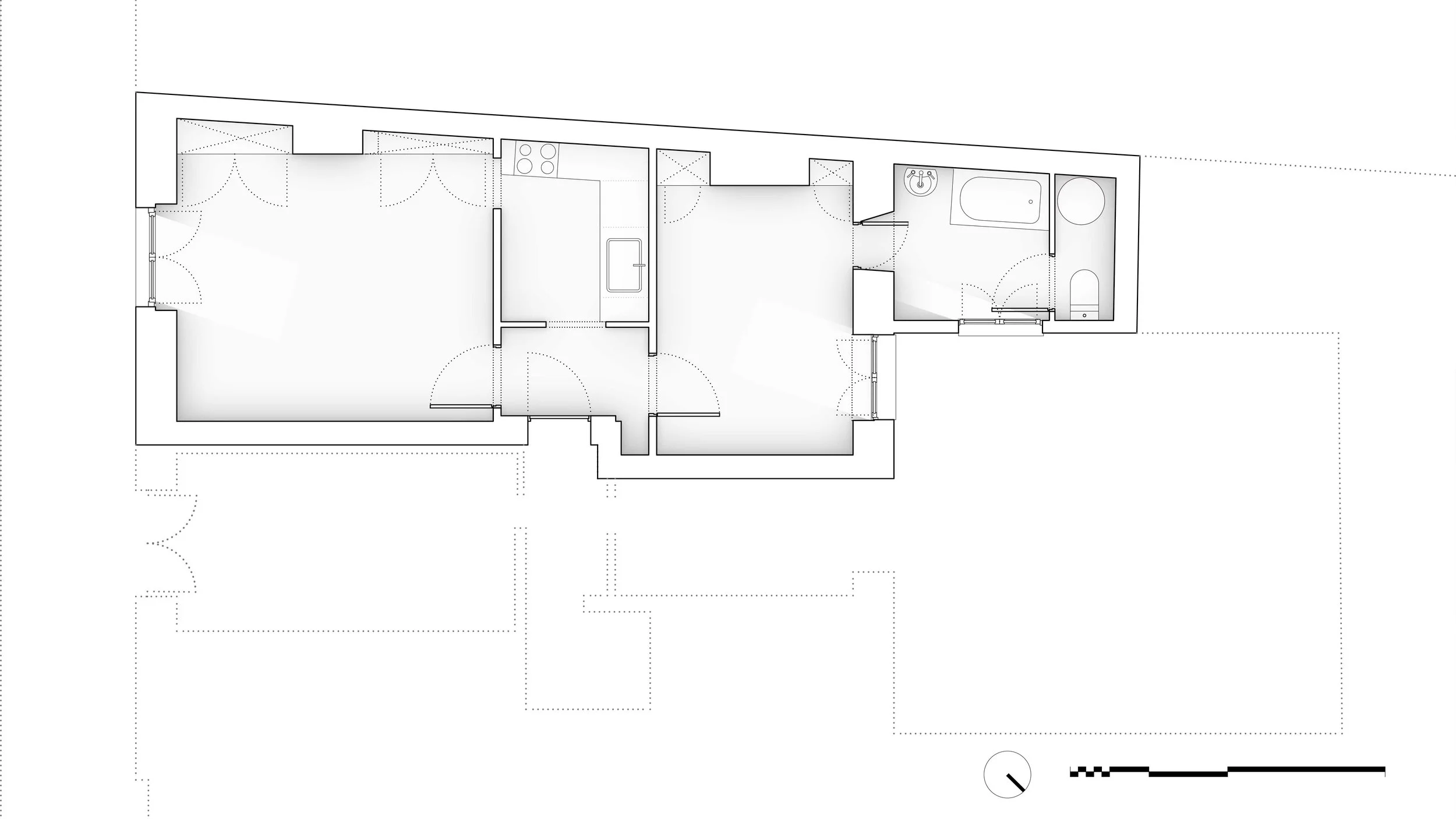
El proyecto consistió en transformar una antigua vivienda de 35 m², oscura y situada en planta baja, en un gabinete de fisioterapia cálido y acogedor. El programa incluye una sala de espera, una sala de tratamiento, una sala polivalente y un espacio de aislamiento, respondiendo a diversas necesidades funcionales en una superficie reducida.

 
 

A pesar de un presupuesto limitado pero con altas expectativas estéticas, el proyecto logró crear un espacio sobrio, apacible y refinado. El ejercicio se basó en un diseño racional, donde cada detalle y cada material fueron pensados para contribuir a una atmósfera de calma y recuperación. Un trabajo en profundidad con el cliente, acompañado de múltiples ensayos y referencias visuales, permitió definir una identidad clara: un universo inspirado en el minimalismo escandinavo y el modernismo artesanal.

La elección de materiales refleja esta ambición: el contrachapado de madera clara, utilizado en paneles lisos y perforados tipo pegboard, aporta calidez y naturalidad, mientras que el acero inoxidable cepillado de las puertas, equipamientos y mobiliario a medida introduce un matiz artesanal e industrial. La iluminación indirecta, privilegiando una luz cálida, resalta la madera y contribuye a una atmósfera tranquilizadora.

La organización interior sigue una lógica de pureza formal: los volúmenes son depurados, eliminando irregularidades visuales, para ofrecer espacios proporcionados, legibles y serenos. El diseño de mobiliario a medida en acero inoxidable completa esta aproximación, uniendo robustez, sencillez y elegancia.

Este proyecto ilustra la búsqueda de un equilibrio entre funcionalidad, sobriedad y carácter, dando forma a un gabinete a la vez profesional, acogedor y distintivo.

 

PLAN PROJET RDC

PLAN PROJET R+1